Projekty domów
Zapraszamy do osiedla Lechia, gdzie marzenia o własnym domu nad brzegiem Oceanu Indyjskiego stają się rzeczywistością.
Zainwestuj w działkę i wybierz jeden z naszych starannie opracowanych projektów architektonicznych. Odpocznij, wiedząc, że cały proces budowy prowadzony jest przez doświadczonych lokalnych wykonawców pod czujnym okiem naszego polskiego zespołu technicznego. Nasze domy są zaprojektowane z uwzględnieniem lokalnego klimatu i warunków, gwarantując nie tylko wyjątkowy komfort i funkcjonalność, ale i niezrównaną estetykę.
Monitorowanie na każdym kroku
Jako część naszej kompleksowej obsługi, oferujemy dedykowaną usługę monitoringu budowy. Nasi specjaliści regularnie odwiedzają plac budowy, aby sprawdzać postęp prac i dostarczać Ci aktualne zdjęcia oraz dokumentację, dzięki czemu możesz śledzić postępy swojego projektu z dowolnego miejsca na świecie.
Elastyczne rozwiązania finansowe
Rozumiemy, że budowa domu to znacząca inwestycja. Dlatego oferujemy atrakcyjne warunki finansowania ratalnego.
Rozpocznij swoją inwestycję od pierwszej wpłaty wynoszącej 40% wartości domu przy zawarciu umowy, a resztę kwoty rozłóż na wygodne miesięczne raty, dostosowane do Twoich możliwości finansowych, w okresie od 12 do 24 miesięcy.
Zacznij swoją podróż z nami
Nie przegap okazji, by zamieszkać w jednym z najpiękniejszych miejsc na Ziemi. Skontaktuj się z nami już dziś, aby dowiedzieć się więcej o projektach domów i zacząć planowanie swojego nowego życia na osiedlu Lechia. Odkryj, jak łatwo może stać się właścicielem domu, który spełni wszystkie Twoje miesięcznych rat.
Villa Sambatra
Powierzchnia użytkowa: 108 m²
Liczba sypialni: 3
Liczba łazienek: 3
Pomieszczenie pralni
Przestronny taras
Prywatny basen 3m x 6m
Tropikalny prywatny ogród
Salon z aneksem kuchennym
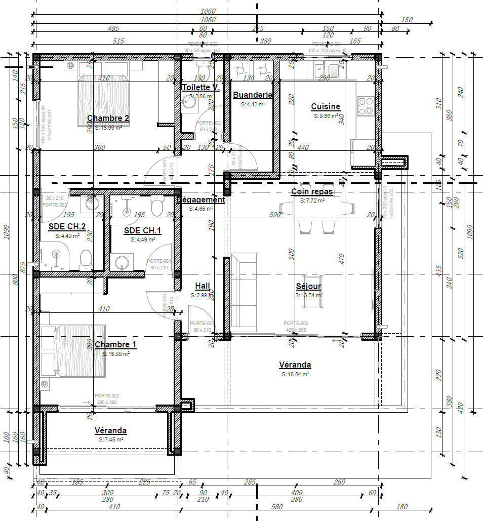
Villa Valiha
Powierzchnia zabudowy: 83 m²
Liczba sypialni: 2
Liczba łazienek: 2
Pomieszczenie pralni
Przestronny taras
Prywatny basen 3m x 6m
Tropikalny prywatny ogród
Salon z aneksem kuchennym
Villa Manja
Powierzchnia zabudowy: 87 m²
Liczba sypialni: 2
Liczba łazienek: 2
Pomieszczenie pralni
Przestronny taras
Prywatny basen 3m x 6m
Tropikalny prywatny ogród
Salon z aneksem kuchennym

